
701 W. 6th Street Tower: 66 Floors Proposed in Austin
Kairoi Residential proposes a 66-floor, 413-unit mixed-use tower at 701 W. 6th Street, Austin.

Mixed-use project at 10200 McKalla Place in North Burnet gains approval.

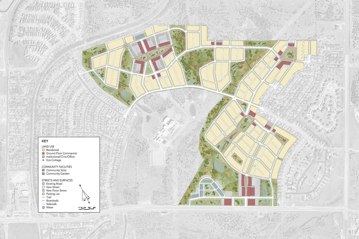
Colony Park's 3000-unit mixed-use development is underway in NE Austin.

675-unit mixed-use project at 4900 Gonzales St, Austin, completes by 2028.

The Maven, an 80-unit affordable housing project, proposed at 618 East Highland Mall Blvd, Austin.

Ridgeline Neighborhood Park, at 2701 South Lakeline Blvd., is set to complete by May 31, 2026.

Blocks 16 & 18, a 138-unit project on East 11th Street, gets approval.

Gabriel's Horn, a 241,000 sq ft mixed-use project, proposed at Ronald Reagan Blvd, Leander.

Airco Mechanical PUD, a 316-unit mixed-use project near I-35 & SH 45, completes by 2027.

Santa Rita Courts West, a 96-unit project in East Austin, approved by Austin Affordable Housing Corp.

The Martin, a 375-unit mixed-use project by OHT Partners, is underway in East Austin.

Workbench, a 4-story mixed-use project, is under construction at 2422 E. Seventh St., Austin.

The Sasha, a 60-unit affordable housing project, is underway at 1325 Grove Blvd, Austin, with completion expected by May 2027.