Two Towers and 4201 S Congress Approved
Mixed-use projects near UT and 4201 S Congress get green light in Austin.





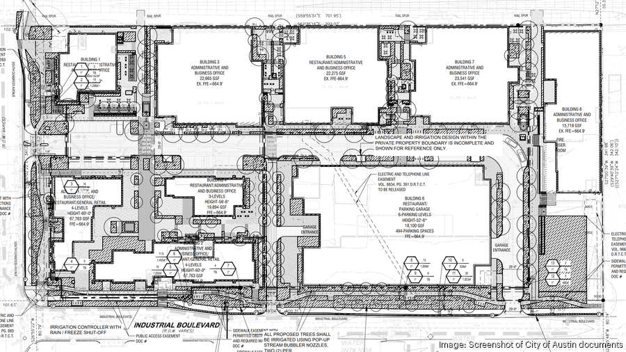
Two Towers near UT and 4201 S Congress, a mixed-use development, approved for West MLK Jr. Blvd & West 18th Street and 4201 South Congress Ave. Features include 379 units, 287 hotel rooms, and 494 parking spaces. Completion expected by January 23, 2029. This hub will enhance the St. Elmo District.
No public transit info available.
Project Details
- Address
- West MLK Jr. Blvd & West 18th Street; 4201 South Congress Avenue, Austin, TX
- Status
- approved
- Units
- 379
- Expected Completion
- 2029-01-23