Colony Park Community Rising in NE Austin

Colony Park, a 3000-unit mixed-use project by Catellus, is underway in NE Austin.

Colony Park Sustainable Communities Master Plan — Farr Associates ...
Colony Park Sustainable Communities Master Plan — Farr Associates ...Image via Farr Associates
Colony Park Sustainable Communities Master Plan — Farr Associates ...
Colony Park Sustainable Communities Master Plan — Farr Associates ...Image via Farr Associates
Colony Park Sustainable Communities Master Plan — Farr Associates ...
Colony Park Sustainable Communities Master Plan — Farr Associates ...Image via Farr Associates
Colony Park — Catellus
Colony Park — CatellusImage via Catellus
Catellus to develop Colony Park Sustainable Community | Urbanize ...
Catellus to develop Colony Park Sustainable Community | Urbanize ...Image via Urbanize Austin

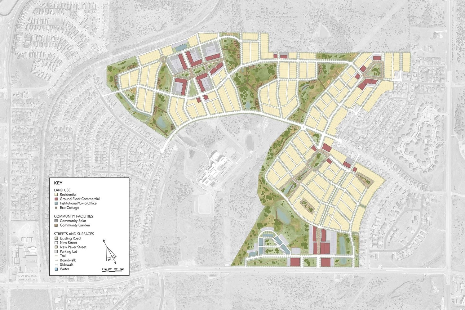
Colony Park Sustainable Community, a 3000-unit mixed-use development, is under construction at Loyola Lane between Johnny Morris Road and Decker Lane in Northeast Austin. Developed by Catellus Development Corporation with architecture by Farr Associates and Urban Design Group.

Features include parks, open spaces, a health center, institutional and office spaces, retail areas, walkable and bikeable streets, healthy food options, and educational facilities.

No affordable units are planned, but the project aims to enhance community accessibility and livability through its comprehensive amenities.

Project Details

Address
Loyola Lane between Johnny Morris Road and Decker Lane, Northeast Austin, Texas
Status
under construction
Units
3000