Two Towers and 4201 S Congress Approved in Austin

Two Towers and 4201 South Congress, a 379-unit project, approved in Austin.

South Congress Hotel | Michael Hsu Office of Architecture
South Congress Hotel | Michael Hsu Office of ArchitectureImage via Michael Hsu Office of Architecture
Office, retail and restaurants to rise in South Austin's St. Elmo ...
Office, retail and restaurants to rise in South Austin's St. Elmo ...Image via The Business Journals
Office, retail and restaurants to rise in South Austin's St. Elmo ...
Office, retail and restaurants to rise in South Austin's St. Elmo ...Image via The Business Journals
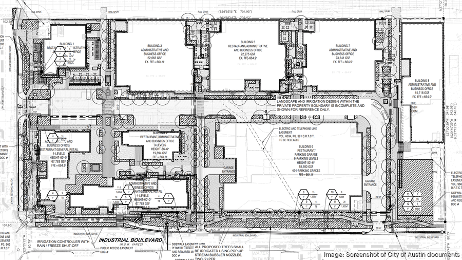
Developer Greenlit for 8-Building St. Elmo Venture - Connect CRE
Developer Greenlit for 8-Building St. Elmo Venture - Connect CREImage via Connect CRE
St. Elmo mixed-use project approved in Austin off South Congress ...
St. Elmo mixed-use project approved in Austin off South Congress ...Image via The Business Journals

Two Towers and 4201 South Congress, a 379-unit mixed-use development, approved for West Martin Luther King Jr. Blvd & West 18th St, and 4201 South Congress Ave in Austin. Developed by Redcar Properties with architecture by Michael Hsu Office of Architecture.

Features include 494 parking spaces, with completion by January 31, 2029. It blends residential and commercial spaces, enhancing the urban landscape.

Located in the St. Elmo District, it aims to boost local infrastructure and provide new opportunities for residents and businesses.

Project Details

Address
West Martin Luther King Jr. Boulevard & West 18th Street; 4201 South Congress Avenue, Austin, TX
Status
approved
Units
379
Expected Completion
2029-01-31