Sylvan Hills II: 233 Affordable Units Underway
Sylvan Hills II, a 233-unit affordable housing project, is under construction at 1924 Sylvan Circle SW, Atlanta.





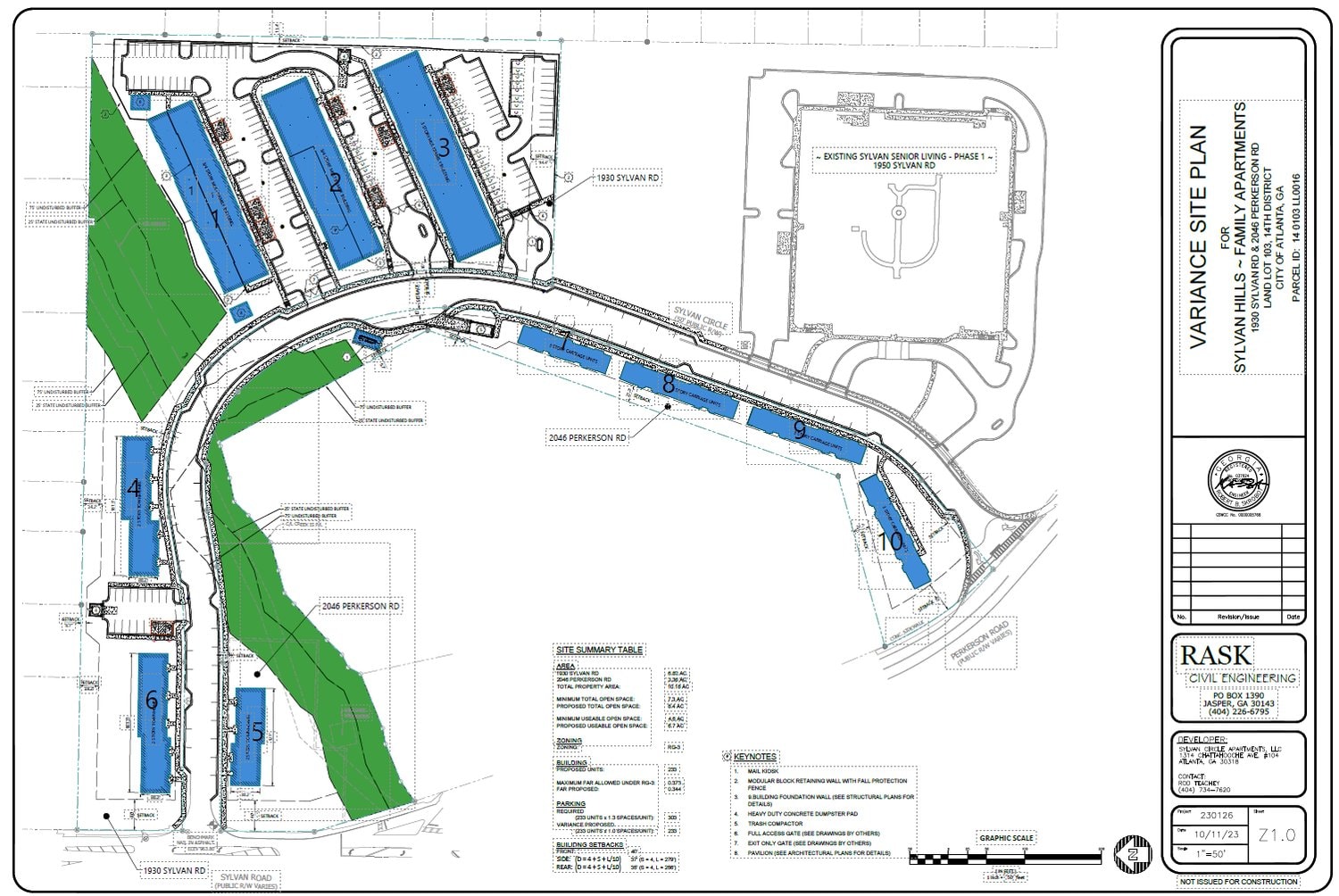
Sylvan Hills II, a 233-unit residential development, is under construction at 1924 Sylvan Circle SW in Atlanta's Sylvan Hills. Developed by TCE Development, Radiant Development Partners, EQ Housing Advisors, Atlanta Neighborhood Development Partnership, and Metro Atlanta Land Bank, with design by Geheber Lewis Associates, it features three residential floors.
Amenities include energy-efficient appliances, free Wi-Fi in common areas, an on-site management office, a community room, computer lab, fitness center, children's activity room, and outdoor spaces with gathering areas, a playground, landscaped areas, and walking paths. Completion is slated for December 31, 2026.
All 233 units are designated as affordable housing, supporting efforts to increase affordable options in Atlanta.
Project Details
- Address
- 1924 Sylvan Circle SW, Atlanta, GA
- Status
- under construction
- Units
- 233
- Floors
- 3
- Expected Completion
- 2026-12-31