Sylvan Hills II: 233 Affordable Units Rising in Atlanta
Sylvan Hills II, a 233-unit affordable housing project, is underway in Atlanta's Sylvan Hills, set for completion by 2026.





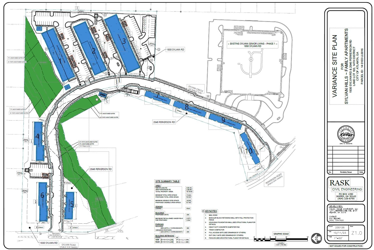
Sylvan Hills II, a 233-unit residential project, is under construction at 1924 Sylvan Circle SW in Atlanta's Sylvan Hills. Developed by TCE Development, Radiant Development Partners, EQ Housing Advisors, Atlanta Neighborhood Development Partnership, and Metro Atlanta Land Bank, with architecture by Geheber Lewis Associates, the three-floor project will include all affordable housing units.
Amenities feature walking paths, a playground, a community room, and outdoor areas. Completion is slated for 2026.
This project aims to boost affordable housing in the area while integrating community-friendly features.
Project Details
- Address
- 1924 Sylvan Circle SW, Atlanta, GA
- Status
- under construction
- Units
- 233
- Floors
- 3
- Expected Completion
- 2026-12-31